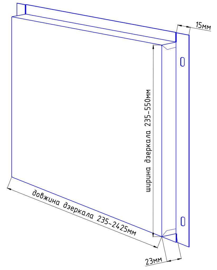
Розміри прямої фасадної касети
Наявність: В наявності
Сигнальний жовтий
RAL 1003
глянець
Слонова кістка
RAL 1014
глянець
Світла слонова кістка
RAL 1015
глянець
Цинково-жовтий
RAL 1018
глянець
Винно-червоний
RAL 3005
глянець
мат
двосторонній глянець
двосторонній мат
Коричнево-червоний
RAL 3011
глянець
мат
Ультрамариново-синій
RAL 5002
глянець
Сигнальний синій
RAL 5005
глянець
Сталево-синій
RAL 5011
мат
Листяно-зелений
RAL 6002
глянець
Зелений мох
RAL 6005
глянець
мат
двосторонній глянець
двосторонній мат
Хромовий зелений
RAL 6020
глянець
мат
Сигнальний сірий
RAL 7004
глянець
Сірий антрацит
RAL 7016
глянець
мат
двосторонній мат
Графітовий сірий
RAL 7024
глянець
мат
двосторонній мат
Мідно-коричневий
RAL 8004
глянець
мат
Шоколадно-коричневий
RAL 8017
глянець
мат
глянець
глянець
Сіро-коричневий
RAL 8019
глянець
мат
двосторонній мат
Сигнальний білий
RAL 9003
глянець
Чорний бурштин
RAL 9005
глянець
мат
двосторонній мат
Біло-алюмінієвий
RAL 9006
глянець
Білий
RAL 9010
глянець
| Товщина металу | 0,45-0,7 мм |
|---|---|
| Фальці | 15 мм |
| Висота профілю | 23 мм |
| Довжина дзеркала | 235-2425 мм |
| Ширина дзеркала | 235-550 мм |
| Тип покриття | цинк, поліестер |
Продаж без посередників, безпосередньо з нашого заводу
20 років бездоганної роботи
Доступ в цех для вибору матеріалу наживо
Фірмовий офіс в центральній частині міста
Безкоштовна упаковка, доставка власним транспортом
87% фахівців працюють у нас більш 11 років
Виробляємо всі види профнастилу та металочерепицю, дотримуючись контролю, відповідно до держстанддарту
Ваш браузер не поддерживает плавающие фреймы!
Залишити відгук